СООБЩЕНИЕ О ПРИЕМЕ ЗАЯВЛЕНИЙ О НАМЕРЕНИИ УЧАСТВОВАТЬ В АУКЦИОНЕ
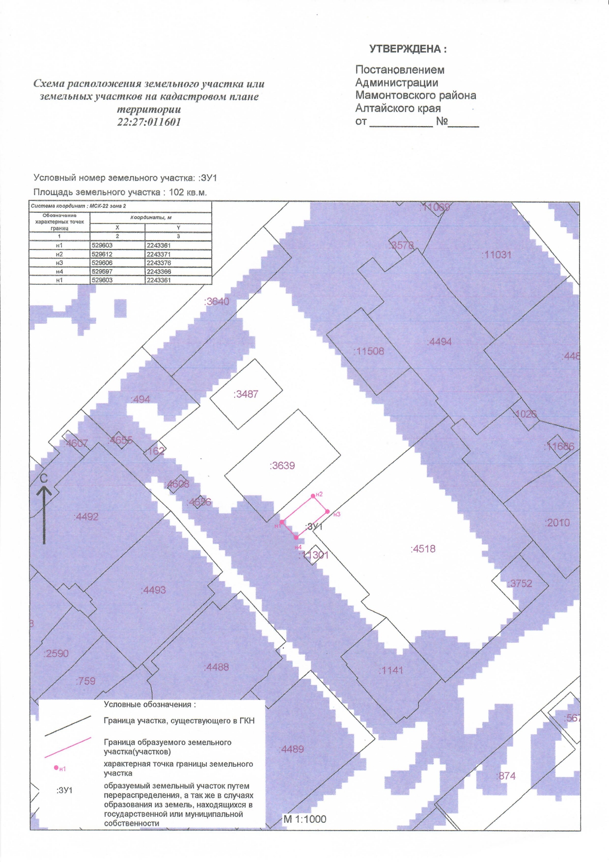
Администрация Мамонтовского района Алтайского края информирует о возможном предоставлении в собственность за плату земельного участка для ведения личного подсобного хозяйства площадью 102 кв. м, расположенного по адресу: Российская Федерация, Алтайский край, Мамонтовский район, с. Мамонтово, ул. Партизанская, земельный участок 162Д, из категории земель - земли населенных пунктов, с видом разрешенного использования: для ведения личного подсобного хозяйства.
Заявления граждан о намерении участвовать в аукционе на право заключения договора купли-продажи земельного участка принимаются в течение тридцати дней с момента опубликования настоящего извещения.
Указанные заявления принимаются по адресу: Алтайский край, Мамонтовский район, с. Мамонтово, ул. Советская, д. 148, кабинет № 30 пн.-пт. (в рабочие дни) с 8.00 до 17.00, перерыв с 13.00 до 14.00.
Справки по телефону: 8 (385 83) 22341.
Дата публикации: 7 октября 2025 года.



